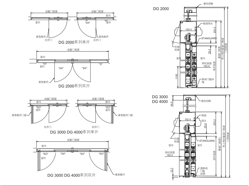
緊急疏散平移門系列
產品描述
緊急疏散門將世界領先的微處理技術和先進的工程技術相結合,數十年來引領全球自動門,平順,安全,可靠,高性能,耐用,高專業的標準。
產品特點
●提供連同上亮和輔門(隔斷或地彈簧門),整體一體化型材,視覺美觀大氣
●活動扇在任意位置可向疏散方向90度打開,固定扇同時也能被推開,并可調節推開力道。可順利通過消防驗收
●推門斷電功能,保證門扇推開時,地東門處于斷電狀態,保障安全
●門體及電梁采用優質型材,相比國內其他產品具有更高的硬度,和抗拉強度,提高安全系數
●300萬次無故障自動開合測試和30萬此無故障手推測試
●承重輪采用美國杜邦公司為史丹利特別研發的高氟聚亞安酯材質,耐用降噪并終身保用
●可配備高保安性能機械鎖,可納入總鑰匙管理系統
●為變壓器和控制器設計獨立的過載保護功能,抵御電壓不穩定所帶來的傷害



